Der DK-4 wird aus stahlverstärktem Betonfertigteil hergestellt und ist in einer Vielzahl von Texturen und Farben erhältlich, um die bestehende Architektur zu ergänzen und gleichzeitig eine außergewöhnliche Haltbarkeit und minimale Wartung zu bieten.
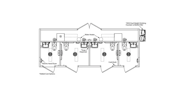
Das 11' x 26' große DK-4 verfügt über vier vollständig zugängliche Toiletten mit Wasserspülung für Einzelbenutzer und umfasst vier Toiletten (drei ADA), vier Waschbecken, ADA-Haltegriffe sowie Innen- und Außenbeleuchtung.
Wichtigste Vorteile
- Einfache Installation: Minimale Vorbereitung des Standorts erforderlich und kann in der Regel am Tag der Installation in Betrieb genommen werden
- Einfach zu warten: Die Vollbetonkonstruktion ist verrottungs- und korrosionsbeständig und ermöglicht eine einfache Reinigung und niedrigere Betriebskosten.
- Vandalismusresistent: Die Innenräume sind so konzipiert, dass sie vor Abnutzung geschützt sind und die Lebensdauer der Struktur maximiert wird.
DK-4 Grundriss

Standard-Merkmale
Die Standardmerkmale des DK-4 sind unten aufgeführt. Darüber hinaus gibt es eine Reihe von kostenpflichtigen Optionen, die Ihren speziellen Anforderungen entsprechen. Kontaktieren Sie uns für weitere Informationen.
Simulierte Barnwood-Wände mit simuliertem Zedernschindeldach.
Toiletten und Waschbecken aus glasiertem Porzellan.
Energieeffiziente LED-Beleuchtung innen und außen.
4-Gallonen-Wassererhitzer.
Haltegriffe aus Edelstahl und ADA-konforme Beschilderung mit Blindenschrift.
Toilettenpapierhalter, Kleiderhaken und Türstopper.
Ressourcen und Spezifikationen
- DK-4-Zeichnungen3,34 MB
- Dakota Stub Up Zeichnung142.59 KB
- Stiftung Zeichnung200,24 KB
- Dakota Spezifikationen207.43 KB
- Dakota Einbau136,15 KB
- CXT Flush/Shower Wartungshandbuch464.31 KB
- CXT-Gebäudewagenkonfiguration11 (2+3+2RGN)501.47 KB
- CXT-Gebäudewagen-Konfiguration12 (3axRGN)572.83 KB
Galerie
Bestellung und weitere Informationen
Wenn Sie mehr über dieses Produkt erfahren möchten, füllen Sie unser kurzes Kontaktformular aus, um mit unserem Expertenteam Kontakt aufzunehmen.
Kontakt zu L.B. Foster Regionale RepräsentantenZustellung in den gesamten Vereinigten Staaten und Kanada
Unsere drei Werke in Idaho, Texas und West Virginia verfügen über die Zertifizierungen ISO 9001:2015 und PCI. Unsere Betongebäude werden in den gesamten Vereinigten Staaten und Kanada komplett und schlüsselfertig geliefert. Wenden Sie sich an Ihren regionalen Vertriebsmitarbeiter, um Ihr Projekt zu besprechen und zu erfahren, wie wir Ihre Projektanforderungen erfüllen können.
