Ozark II 采用钢筋预制混凝土制造,有多种质地和颜色可供选择,既能与现有建筑相得益彰,又能提供卓越的耐久性和最少的维护费用。
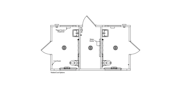
10' 6" x 18' 8" 的 Ozark II 有两间单人卫生间,包括两个符合 ADA 标准的马桶、两个洗脸池、符合 ADA 标准的扶手以及内部和外部照明。
主要优势
- 安装简单:所需场地准备工作极少,通常可在安装当天投入使用
- 易于维护:全混凝土结构可抵御腐烂和腐蚀,易于清洁,降低运营成本
- 防破坏:内部设计可抵御剧烈磨损,最大限度地延长结构的使用寿命。
奥扎克二期平面图

标准功能
奥扎克 II 的标准功能如下。此外,我们还提供各种附加费用选项,以满足您的特殊需求。如需了解更多信息,请联系我们。
仿真楠木纹理墙壁,仿真雪松木纹屋顶。
陶瓷马桶和水槽。
室内外节能 LED 照明。
4 加仑热水器。
不锈钢扶手和符合 ADA 标准的盲文标识。
厕纸架、衣帽钩和门挡。
资源和规格
- 奥扎克 II 图纸1.44 MB
- 奥扎克 II 装配图114.75 KB
- 地基图200.24 KB
- 奥扎克 II 规格207.40 KB
- 奥扎克 II 安装103.73 KB
- CXT 冲洗器/喷淋器维护手册464.31 KB
- CXT 建筑卡车配置8(RGN)675.10 KB
- CXT 建筑车配置9(台阶式)554.59 KB